Na sprzedaż pawilon handlowo-usługowy w Zabrzu
Zabrze Pokaż na mapie ›
Ogłoszenie archiwalne Wygasło: Wtorek, 23 Wrzesień, 2025 05:23
145 000 zł
Szczegóły ogłoszenia
- Kategoria: Biura i lokale / Sprzedaż
- Przeznaczenie:Inne przeznaczenie
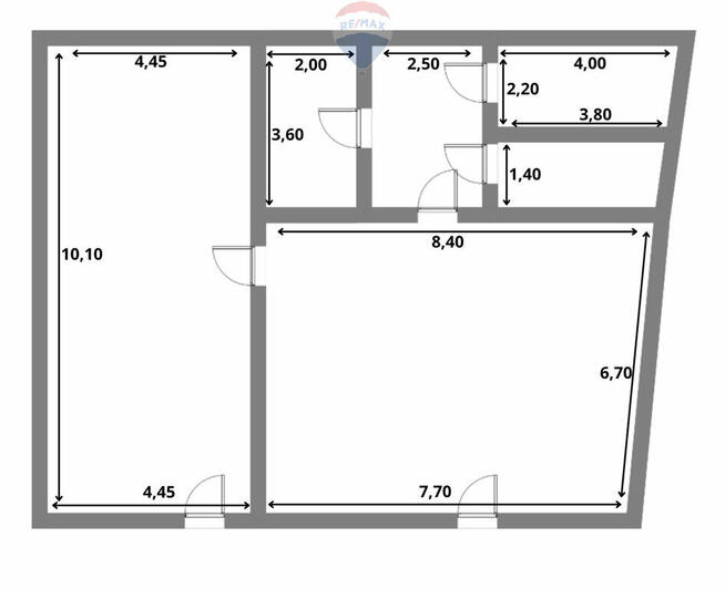
- Powierzchnia:129 m2
- Sprzedaż:Pośrednik
- Cena: 145 000 zł
Opis oferty
Na sprzedaż pawilon handlowo-usługowy w ZabrzuPrzedmiotem oferty jest pawilon użytkowy, zlokalizowany przy ul.
Szybowej 3 w Zabrzu, na osiedlu Młodego Górnika.
Budynek posiada powierzchnię użytkową 129 m² i wymaga generalnego
remontu. Obiekt stanowi atrakcyjną propozycję inwestycyjną dla
przedsiębiorców planujących uruchomienie działalności handlowej
lub usługowej np. sklepu spożywczego (typu Żabka), piekarni (np.
Kłos), apteki lub innych punktów usługowych.
Kluczowym atutem nieruchomości jest lokalizacja osiedle Młodego
Górnika obecnie pozbawione jest infrastruktury handlowej, co stwarza
realne zapotrzebowanie na podstawowe usługi i produkty. Mieszkańcy
zmuszeni są do codziennych dojazdów samochodem do odległych
punktów handlowych, co podkreśla potencjał inwestycyjny oferowanego
obiektu.
Pawilon znajduje się na działce o powierzchni 320 m², co daje
możliwość dodatkowej aranżacji terenu np. pod miejsca parkingowe,
ogródek przy punkcie gastronomicznym lub inną infrastrukturę
wspierającą prowadzoną działalność.
Dodatkowo na sprzedaż bliźniaczy budynek z innym rozkładem ścian
działowych przy ul. Szybowej 1 który znajduje się w bezpośrednim
sąsiedztwie.
Zamieszczony w ofercie rzut budynku jest poglądowy. Budynki mogą
być zakupione razem lub oddzielnie, w zależności od potrzeby
klienta. To może być Twoja szansa na biznes!
Skontaktuj się z nami już dziś, aby umówić się na prezentację!
Agent nieruchomości zainteresowany tą ofertą dla swojego klienta
proszony jest o kontakt. Chętnie uzgodnimy warunki współpracy z
RE/MAX przy sprzedaży.
CAŁOŚĆ KOSZTÓW POŚREDNICTWA POKRYWA WŁAŚCICIEL NIERUCHOMOŚCI
KUPUJĄCY NIE PŁACI WYNAGRODZENIA AGENCJI.
Informacja przekazywana przez agenta / właściciela biura uważana
jest za dokładną i rzetelną, ale nie jest gwarantowana i powinna
być niezależnie sprawdzona.
Agent prowadzący:
Rafał Weinert
+48 517 - pokaż numer telefonu -
W przypadku tej oferty wynagrodzenie naszego biura pokrywa
właściciel nieruchomości.
Opis oferty zawarty na stronie internetowej sporządzany jest na
podstawie oględzin nieruchomości oraz informacji uzyskanych od
właściciela, może podlegać aktualizacji i nie stanowi oferty
określonej w art. 66 i następnych K.C.
Sprawdź zainteresowanie tym ogłoszeniem
Wyświetlenia
Data dodania
Ostatnio widziany
Obserwujących
Wysłane zapytania
Odsłony telefonu
Powiadom o podobnych ogłoszeniach
Lokalizacja: Zabrze
Kategoria: Nieruchomości » Biura i lokale » Sprzedaż
Cena: od 123500 zł do 167000 zł Powierzchnia : od 110 m2 do 148 m2
Chcę otrzymywać powiadomienia o nowych ofertach
To ogłoszenie jest archiwalne i może być nieaktualne.
Marta Kulawik
Konto firmowe
Na Lento.pl od 13 lis 2012
Strona użytkownika
- Wypromuj ogłoszenie
- Zgłoś naruszenie
- Edytuj/usuń ogłoszenie
- Udostępnij ogłoszenie
- Dodaj na Facebook































