3 pokoje Zabrze Roosevelta plus garderoba
Zabrze Pokaż na mapie ›
Ogłoszenie archiwalne Wygasło: Niedziela, 05 Marzec, 2023 20:32
245 000 zł
5213 zł/m2
Szczegóły ogłoszenia
- Kategoria: Mieszkania / Sprzedaż
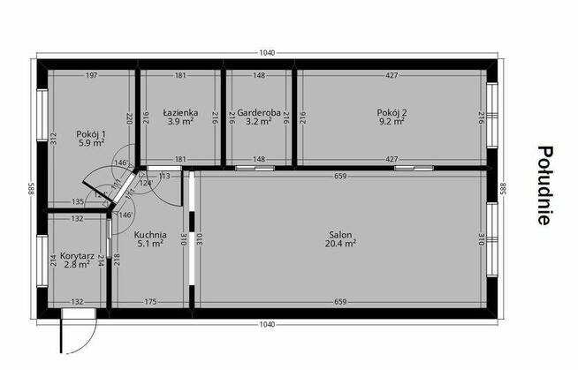
- Powierzchnia:47 m2
- Liczba pokoi:3 pokoje
- Zabudowa:Blok
- Tech. budowy:Cegła
- Piętro :Parter
- Liczba pięter:4 piętra
- Rynek:Wtórny
- Rok budowy:1960
- Stan:Do zamieszkania
- Sprzedaż:Pośrednik
- Cena: 245 000 zł / 5213 zł/m2
Opis oferty
Zapraszamy mieszkanie pod inwestycję lub do własnego zamieszkania !Dobre połączenie z aglomeracją śląską DTŚ - 5 min, A4, A1, DK88.
W pobliżu:
Wydziału Organizacji i Zarządzania Politechniki Śląskiej,
Wydziału Inżynierii Biomedycznej Politechniki Śląskiej,
Szkoła, przedszkole, komunikacja miejska, dobrze rozwinięta sieć sklepów.
Ważne informacje:
- 3 pokoje 47 m2 (salon z kuchnią plus 2 sypialnie),
- garderoba,
- łazienka z wc,
- okna plastikowe w mieszkaniu na dwa kierunki,
- w mieszkaniu zostaje zabudowa kuchenna oraz łazienka zgodnie ze zdjęciem,
- piwnica,
- ogrzewanie gazowe piec 2 - funkcyjny,
- parter,
- blok w trakcie termomodernizacji.
Spodobało Ci się mieszkanie ? zadzwoń 607 - pokaż numer telefonu - ! chętnie odkupimy Twoje mieszkanie.
SANIMER Nieruchomości
Sprawdź zainteresowanie tym ogłoszeniem
Wyświetlenia
Data dodania
Ostatnio widziany
Obserwujących
Wysłane zapytania
Odsłony telefonu
Powiadom o podobnych ogłoszeniach
Lokalizacja: Zabrze
Kategoria: Nieruchomości » Mieszkania » Sprzedaż
Cena: od 208500 zł do 282000 zł Powierzchnia : od 40 m2 do 54 m2
Chcę otrzymywać powiadomienia o nowych ofertach
Brak możliwości kontaktu przez formularz z ogłoszeniodawcą, ponieważ to ogłoszenie jest archiwalne.
Karina
Konto firmowe
Na Lento.pl od 09 sie 2022
Strona użytkownika
- Wypromuj ogłoszenie
- Zgłoś naruszenie
- Edytuj/usuń ogłoszenie
- Udostępnij ogłoszenie
- Dodaj na Facebook



























